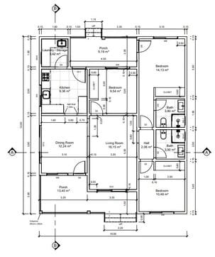
- DIMENSIÓN: 7,80 x 12,70 m
- ÁREA: 99,06 m²
- 3 Dormitorios (1 Suite)



H3 1
H3 2
H3 3

Diseños Alternativos de Fachada
TOUR VIRTUAL 3D
Diseño Casa de 3 Dormitorios
Una casa confortable, con salón-comedor y una práctica cocina. Tiene lavadero y despensa con espacio de almacenamiento. Con 3 dormitorios, uno de los cuales es una suite, la casa se diseñó para ofrecer funcionalidad y comodidad, con iluminación y ventilación naturales.
































